Fully Customized Container Home and well designed interior
$5,000.00
Guaranteed Safe Checkout
Features & Compatibility
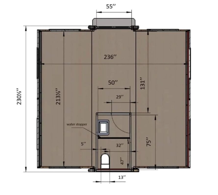
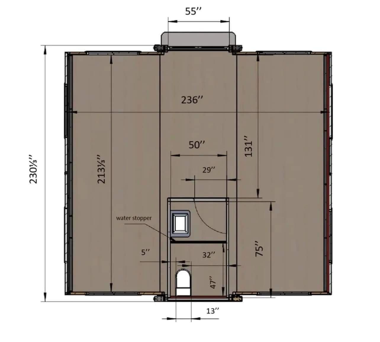
Dimension
L19xW20xH8 (after expand),380ft2
Frame Structure
Steel Frame structure
Flame retardant foam wallboard
Roof
Flame retardant foam aluminum magnesium manganese thermal insulation roof
Floor
Glass magnesium floor
0.08-inch wear-resistant laminate floor leather
Window
Double-layer tempered glass-plastic-steel sliding lattice window
window outside bathroom: Plastic glass window
Restroom with shower
shower curtain rack, Shower valve, Shower sprinkler, shower rod, floor Drain, door stopper: Stainless steel
shower curtain: tarpaulin
Soapdish, toilet brush: Aluminum alloy
Water stopper, mirror box: PVC
Silent exhaust fan
Security Doors
Main door: aluminum door with lock
Restroom door: WPC Door + Frosted Glass
Electricity
Need to set up additionally
Hot and cold water valve
Stainless steel Grade 304
Fittings
PPR hot and cold water pipe
PVC drainage pipe
Insulation Pipe
Installation
Hydraulic brace: Pressure 3000N
Bearing: 6204
Hinge pulley block: 2000 lbs
Wire rope: φ5mm
